
ZJHF46系列精小型氣動襯氟調節閥采用頂部導向結構,配用多彈簧執行機構,具有結構緊湊、重量輕、動作靈敏、流體通道呈S流線型、壓降損失小、閥容量大、流量特性精確、拆裝方便等優點。氣動襯四氟調節閥廣泛應用于精確控制氣體、液體等介質的工藝參數對壓力、流量、溫度、液位保持在給定值。特別適用于允許泄漏量小且閥前后壓差不大的場合。本系列產品有標準型、調節切斷型。產品公稱壓力等級有PN0.6、1.0、1.6、2.5、class 150LB;公稱通徑范圍DN20~300;使用溫度由-20℃~+200℃范圍內多種檔次;泄漏等級VI級,流量特性為線性或等百分比。
ZJHF46系列精小型氣動襯氟調節閥是氣動單元組合儀表中的執行單元,配用電—氣轉換裝置之后,也可進入電動單元組合儀表系統,他接受來自調節儀表的信號,直接改變調介質(如液體、氣體、蒸汽等)的流量,使被控工藝參數(如溫度、壓力、流量等)保持在給定值。
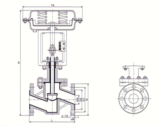
調節閥是由氣動薄膜執行機構與調節機構二部分組成,其結構與原理見下圖
執行機構是氣動調節閥生產過程自動控制系統的重要組成部分,其有正反兩種作用形式,當信號壓力增加,推桿伸出膜室的叫正作用,與閥配合構成氣關式(如圖2a)。當信號壓力增加,推桿推出膜室的叫反作用,與閥配合構成氣開式(如圖2b)。氣動襯四氟調節閥原理:當信號壓力輸入膜室后,在膜片上產生推力,壓縮彈簧,使推桿移動,帶動閥桿,改變閥芯與閥座之間的流通面積,知道彈簧的反作用與信號壓力作用在膜片上的推力想平衡,從而達到自動調節工藝參數之目的。
公稱通徑mm | 20 | 25 | 32 | 40 | 50 | 65 | 80 | 100 | 125 | 150 | 200 | 250 | 300 | ||||||||||||||||||
閥座直徑mm | 10 | 12 | 15 | 20 | 25 | 32 | 40 | 50 | 65 | 80 | 100 | 125 | 150 | 200 | 250 | 300 | |||||||||||||||
額定流量系數Kv | 直線 | 1.8 | 2.8 | 4.4 | 6.9 | 11 | 17.6 | 27.5 | 44 | 69 | 110 | 176 | 275 | 440 | 690 | 1100 | 1760 | ||||||||||||||
等百分比 | 1.6 | 2.5 | 4 | 6.3 | 10 | 16 | 25 | 40 | 63 | 100 | 160 | 250 | 400 | 630 | 1000 | 1600 | |||||||||||||||
公稱壓力MPa | 0.6、1.0、1.6、2.5 | ||||||||||||||||||||||||||||||
行程 mm | 10 | 16 | 25 | 40 | 60 | 100 | |||||||||||||||||||||||||
膜片有效面積Ae(cm) | 280 | 400 | 630 | 1000 | 16000 | ||||||||||||||||||||||||||
流量特性 | 直線、等百分比 | ||||||||||||||||||||||||||||||
工作溫度 ℃ | -30℃~+150℃ | ||||||||||||||||||||||||||||||
固有可調比R | 50:1 | ||||||||||||||||||||||||||||||
信號范圍Pr | 20~100、40~200、20~60、60~100、80~240 | ||||||||||||||||||||||||||||||
氣源壓力MPa | 0.14、0.4 | ||||||||||||||||||||||||||||||
允許壓差MPa | 不限帶定位器 | 5.3 | 3.7 | 23 | 13 | 0.85 | 0.74 | 0.47 | 0.30 | 0.27 | 0.18 | 0.11 | 0.12 | 0.08 | 0.05 | 0.04 | 0.03 | ||||||||||||||
帶定位器 | 6.4 | 6.4 | 5.5 | 3.01 | 2 | 1.7 | 1.1 | 0.71 | 0.63 | 0.41 | 0.26 | 0.28 | 0.20 | 0.11 | 0.08 | 0.05 | |||||||||||||||
接管螺紋 | M16*15 |
項目 | 一般調節閥 | 中溫(柔性石墨填料)或波紋管密封調節閥 | ||||||||||||||||
不帶定位器 | 帶定位器 | 不帶定位器 | 帶定位器 | |||||||||||||||
基本識差% | ±5 | ±1 | ±15 | ±4 | ||||||||||||||
回 差% | ±3 | ±1 | ±10 | 3 | ||||||||||||||
死 區% | ±3 | ±0.4 | ±8 | 1 | ||||||||||||||
始終點偏差% | 氣開 | 始點 | ±2.5 | ±1 | ±6 | ±2.5 | ||||||||||||
終點 | ±5 | ±15 | ||||||||||||||||
氣關 | 始點 | ±5 | ±15 | |||||||||||||||
終點 | ±5 | ±6 | ||||||||||||||||
額定形成偏差% | 2.5 | 2.5 | 6 | 2.5 | ||||||||||||||
允許泄漏量 | 調節型L/h | 10-4×閥額定容量JP | ||||||||||||||||
調節切斷閥 | 閥座直徑 | 20 | 25 | 40 | 50 | 65 | 80 | 100 | 150 | 200 | 250 | 300 | ||||||
允許泄漏量 | 軟密封:VI級 | |||||||||||||||||
額定流量系數偏差% | ±10 | |||||||||||||||||
固有流量特性偏差 | 符合IEC534-1976和GB/T 13927中規定的斜率要求 |
零件名稱 | 材 料 |
閥體、閥蓋 | HT200、ZG230~450、ZG1Cr18Ni9Ti |
襯里材料 | F46、F4、F3、PO、PE、X、X3、PFA |
閥 芯 | 1Cr18Ni9Ti |
波紋管 | F4 |
填 料 | 聚四氟乙烯、柔性石墨 |
彈 簧 | 60Si2Mn |
膜 蓋 | A3 |
閥桿、推桿 | 2Cr13/1Cr18Ni9Ti |
襯 套 | 2Cr13 |
公稱通徑 | 標準值 | 參數值 | |||||||
DN(mm) | PN1.0? PN1.6 | ||||||||
L | D | D1 | D2 | f | b | Z—φd | φA | H | |
15 | 130 | 95 | 65 | 45 | 2 | 14 | 4—φ14 | 282 | 487 |
20 | 150 | 105 | 75 | 55 | 2 | 16 | 4—φ14 | 282 | 487 |
25 | 160 | 115 | 85 | 65 | 2 | 16 | 4—φ14 | 282 | 493 |
32 | 180 | 135 | 100 | 78 | 2 | 18 | 4—φ18 | 282 | 524 |
40 | 200 | 145 | 110 | 85 | 3 | 18 | 4—φ18 | 308 | 530 |
50 | 230 | 160 | 125 | 100 | 3 | 20 | 4—φ18 | 308 | 538 |
65 | 290 | 180 | 145 | 120 | 3 | 20 | 8—φ18 | 394 | 686 |
80 | 310 | 195 | 160 | 135 | 3 | 22 | 8—φ18 | 394 | 706 |
100 | 350 | 215 | 180 | 155 | 3 | 22 | 8—φ18 | 394 | 726 |
125 | 400 | 245 | 210 | 185 | 3 | 24 | 8—φ18 | 498 | 969 |
150 | 480 | 280 | 240 | 210 | 3 | 24 | 8—φ23 | 498 | 969 |
200 | 600 | 335 | 295 | 265 | 3 | 26 | 8—φ23 | 498 | 1009 |
250 | 622 | 390 | 350 | 320 | 3 | 28 | 12—φ23 | 620 | 1353 |
300 | 698 | 440 | 400 | 368 | 4 | 28 | 12—φ23 | 620 | 1390 |